Flatfox·Commercial·1d ago

Rue des Moines 45, 1680 Romont FR - CHF 10’800 incl. utilities per month

Rue des Moines 45, 1680 Romont FR (FR)

Description

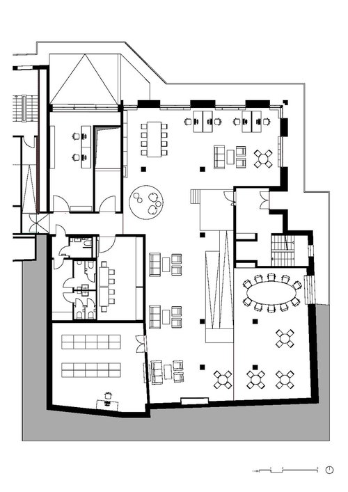
Découvrez au cœur de Romont cette belle surface de presque 500 m2 qui sera totalement réaménagée. Les fenêtres seront agrandies pour optimiser l’éclairage par la lumière naturelle. Un accès indépendant sera créé afin que la surface soit accessible pour les personnes à mobilité réduite. Cet emplacement est idéal pour un bureau, un commerce, un cabinet médical ou encore d’autres affectations... En effet, il peut s’adapter à vos besoins. Caractéristiques principales des locaux : • Deux accès dont un adapté pour les personnes à mobilité réduite • WC privatifs • Places de parc publiques disponibles autour du bâtiment

En cas d'intérêt, c'est avec plaisir que nous répondons à vos questions et organisons un rendez-vous pour visiter les lieux.

Location

CHF 9'500 /mo
CHF 9'500 + CHF 1'300 Nebenkosten
View on Flatfox
Area500 m²
View on Google Maps