Flatfox·Commercial·1d ago

Ferrachstrasse 10, 8630 Rüti - CHF 205 incl. utilities per m² / year

Ferrachstrasse 10, 8630 Rüti

Description

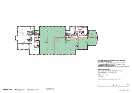
Objektbeschreibung: Wir bieten Ihnen eine vielseitig nutzbare Büro-oder Praxisfläche zur Miete, die sich ideal für Ihre individuellen Bedürfnisse anpassen lässt. Die Fläche befindet sich in einem modernen Gebäude in Rüti ZH, das durch seine zentrale Lage und gute Erreichbarkeit besticht. Details zur Mietfläche: – Grösse: ca. 501 m2 – flexibel abtrennbar ab ca. 100m2. – Nutzung: Ideal für Büros, Praxen oder Therapieräume, stilles Gewerbe Raumaufteilung: Die Fläche kann nach Ihren Wünschen individuell gestaltet und abgetrennt werden, um optimale Arbeitsbedingungen zu schaffen. Ausstattung: –Helle, freundliche Räume –Sanitäranlagen Einstellplätze im UG können dazu gemietet werden. Lage: Die Mietfläche befindet sich in einer gut frequentierten Gegend mit hervorragender Anbindung an öffentliche Verkehrsmittel. Einkaufsmöglichkeiten, Restaurants und weitere Dienstleistungen sind in unmittelbarer Nähe. Ausreichend Parkplätze in der Nähe vorhanden. Besichtigung: Überzeugen Sie sich selbst von den Möglichkeiten dieser flexiblen Mietfläche! Vereinbaren Sie noch heute einen Besichtigungstermin. Wir freuen uns auf Ihre Anfrage!

Features

parkingelevator

Location

CHF 180 /mo
CHF 180 + CHF 25 Nebenkosten
View on Flatfox
Area500 m²
Floor1
View on Google Maps