Flatfox·Commercial·1d ago

Eschenbachstrasse 57A, 6023 Rothenburg - CHF 1’480 incl. utilities per month

Eschenbachstrasse 57A, 6023 Rothenburg

Description

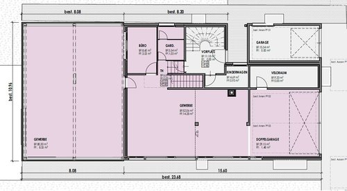
Gewerberaum mit Büro, Lager und Archiv Nutzbar als Lager, Werkstatt, Atelier, Hobbywerkstatt, usw. mit: • Starkstromanschlüsse (CEE16/400V) und 230V • Ebenerdigem Zugang • Parkplätze vor Doppelgarage dabei • Aufteilung: Werkstatt 58,9m², Lager 80m² • Doppelgarage 29,2m², Abstellraum 9,2m², DU/WC 5,5m² und Büroraum mit Glasfaseranschluss 8,6m² • Velounterstand gratis zur Mitbenutzung • Auf Grundriss blau umrahmt vorderer Bereich auch separat zu mieten für CHF 1280.- • Hinterer Bereich (links von Plan) auch separat zu mieten für CHF 490.- • Aussenparkplätze zu mieten für CHF70.-/Parkplatz • Optional: • Lagerraum UG/ LS-Keller/ Archiv 9,2m² für 120.- zusätzlich zu mieten

Features

parkingwashinginternet

Location

CHF 1'480 /mo
incl. Nebenkosten
View on Flatfox
Area181 m²
Floor0
View on Google Maps