Flatfox·Commercial·1d ago

Route des Avouillons 17A, 1196 Gland - CHF 295

Route des Avouillons 17A, 1196 Gland (VD)

Description

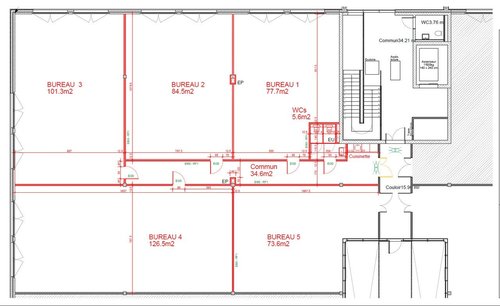
Les espaces intérieurs sont neufs et livrés semi-aménagés, avec la possibilité d'un accompagnement sur mesure avec l'option Plug & Play. Pour répondre aux nouvelles attentes en matière de bien-être et de confort au travail, SPARK propose des espaces bureaux avec intérieurs en bois, un patio central et des zones végétalisées dès l'entrée du bâtiment. Situé dans la zone dynamique de Gland, SPARK propose des espaces locatifs modernes et de haute qualité, à des prix très concurrentiels. Avec SPARK, faites rayonner votre entreprise dans un seul et même lieu professionnel. Aménagement BUREAU 2EME ETAGE – Affectation : commercial / bureau / administration – Surface louée "plug and play" d'environ 101.3m2 – Monte-charge/ascenseur – Chauffage et rafraichissement par panneaux rayonnants – Charge au sol : 500 kg/m2 – Plancher technique – WC communs – kitchenette commune – Solution durable et économique pour réduire vos charges opérationnelles : – Pompe à chaleur – Panneau solaire : prix préférentiel 10.ct kWh Loyer : CHF 295.-/m²/ an Acompte de charge : CHF 35.-/m²/an – Places de parc extérieurs et/ou intérieurs – Bornes de chargement pour voiture électriques – Espace stationnement pour vélo Composition des autres surfaces : ** ** – 1ER étage : 1'200 + 600 + 300 – 2EME étage : 1'200 + 600 + 300 Situation géographique – Proximité immédiate à l'autoroute A1 (5 minutes) – Gare de Gland desservie en 3 minutes Disponibilité – À convenir Visitez le site internet du projet: Spark - une étincelle de créativité pour votre entreprise (spark-gland.ch) Disclaimer : les visuels et photos présentés sont non contractuels et fournis à titre illustratif.

Location

CHF 295 /mo
incl. Nebenkosten
View on Flatfox
Area101 m²
Floor2
View on Google Maps