Flatfox·Commercial·1d ago

Aeschenvorstadt 55, 4051 Basel - CHF 370

Aeschenvorstadt 55, 4051 Basel (BS)

Description

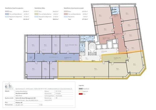
Neuer Standort gesucht? Attraktive Büro- oder Praxisfläche am Aeschenplatz Basel An bester Lage in der Aeschenvorstadt 55 - einer der meistfrequentierten Adressen Basels - bietet sich Ihrem Unternehmen die Chance, in einem repräsentativen Umfeld neue Impulse zu setzen. Die Fläche im 4. Obergeschoss überzeugt mit ca. 300 m² und eignet sich ideal für Büros, Praxen oder andere Dienstleistungsnutzungen. Ihre Vorteile auf einen Blick: • Heller, offener Grundriss mit grosszügiger Fensterfront • Lift direkt zur Etage • Autoeinstellplatz (nach Verfügbarkeit mietbar) • Zusätzliche Lagerflächen auf Wunsch verfügbar • Zentrale, stark frequentierte Lage • Hervorragende Anbindung an den öffentlichen Verkehr (Tram- & Bushaltestellen in Gehdistanz) • Zahlreiche Parkhäuser und Verpflegungsmöglichkeiten in unmittelbarer Nähe

Der Aeschenplatz - nur wenige Schritte entfernt - ist einer der wichtigsten Verkehrsknotenpunkte Basels und garantiert eine ausgezeichnete Erreichbarkeit für Kunden, Mitarbeitende und Geschäftspartner. **Interessiert? Gerne zeigen wir Ihnen die Fläche vor Ort. Wir freuen uns auf Ihre Kontaktaufnahme! ** Bitte beachten Sie: Die Bilder sind Visualisierungen und können vom aktuellen Zustand abweichen.

Features

elevator

Location

CHF 370 /mo
CHF 320 + CHF 50 Nebenkosten
View on Flatfox
Area300 m²
Floor4
View on Google Maps