Flatfox·Commercial·1d ago

Ostermundigenstrasse 93, 3006 Bern - by request

Ostermundigenstrasse 93, 3006 Bern (BE)

Description

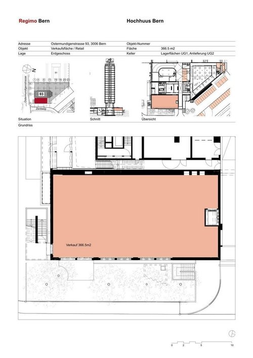
An der Ostermundigenstrasse 93, am östlichen Stadteingang von Bern, erwartet Sie eine Retail-/Verkaufsfläche mit bester Erreichbarkeit. Der Bus hält direkt vor dem Gebäude, der Bahnhof Ostermundigen ist in wenigen Minuten zu Fuss erreichbar und auch die Autobahn liegt ganz in der Nähe. So gelangen Mitarbeitende, Kunden und Partner jederzeit bequem an Ihren Standort. Im Erdgeschoss des Hochhuus erwarten Sie ca. 366 m2 Retailfläche im Rohbauzustand. Diese kann frei nach Ihren Vorstellungen ausgebaut werden und bietet damit viel Spielraum für die Umsetzung Ihrer Geschäftsidee. Ob Showroom, Ladenlokal oder eine kombinierte Verkaufs- und Dienstleistungsfläche, hier schaffen Sie ein Umfeld, das perfekt zu Ihrem Unternehmen passt. Zusätzlich stehen im Untergeschoss ca. 251 m2 Lagerflächen sowie eine 77 m2 grosse Lager-/Anlieferzone zur Verfügung. Alle Flächen sind über einen Warenlift erschlossen, was eine effiziente Logistik und kurze Wege garantiert. Gut fürs Geschäft: – flexible Nutzungsmöglichkeiten (Mieterausbau) – auf Wunsch Abstellplatz für CHF 80.00 pro Monat Ihre Vorteile mit Regimo Business: 1\. Individuelle Mietpreis- und Vertragsmodelle 2\. Beratung und Unterstützung bei der Umbau- und Einrichtungsplanung durch ausgewiesene Spezialisten. 3\. Persönliche Betreuung und hohe Flexibilität im Hinblick auf Mieterwünsche während der gesamten Vertragsdauer. Das Hochhuus ist ein architektonisches Wahrzeichen mit Geschichte. Es verleiht Ihrem Unternehmen eine repräsentative Adresse und verbindet Funktionalität mit Charakter. Mehr Informationen: [ Hochhuus ](https://navigator5.beyonity.ch/?id=2FE9C154&language=ch) . Haben wir Ihr Interesse geweckt? Dann zögern Sie nicht und kontaktieren Sie uns, um einen individuellen Besichtigungstermin zu vereinbaren.

Features

elevator

Location

/mo
View on Flatfox
Area366 m²
Floor0
View on Google Maps